| Nome: | Descrição: | Tamanho: | Formato: | |
|---|---|---|---|---|
| 12.5 MB | Adobe PDF | |||
| 5.16 MB | JPEG | |||
| 5.74 MB | JPEG | |||
| 5.24 MB | JPEG | |||
| 2.78 MB | JPEG |
Autores
Orientador(es)
Resumo(s)
Os diversos hábitos e modos de vida da população urbana e a multiplicidade de necessidades referentes ao espaço doméstico, em conjunto com as aceleradas mutações do modelo social e familiar contemporâneo, põem em causa os processos de produção habitacional em série, justificando assim a exploração de formas alternativas. É necessário pensar a arquitectura ligada à habitação como um “organismo” aberto à mudança, consequentemente adaptável a uma maior diversidade sócio-cultural e mais duradoura.
A flexibilidade na arquitectura consiste na possibilidade de incorporar mudanças no espaço, relacionadas com necessidades actuais e futuras dos usuários, oferecendo variedade formal, tipológica e na distribuição interior. Incluir flexibilidade nas habitações ao longo do tempo, relacionado tanto com a dualidade dia-noite como com as etapas da vida de uma família, permite aos edifícios acomodar novas funções e responder da maneira mais adequada aos requisitos dos residentes.
Esta dissertação aborda o tema da flexibilidade e da mutabilidade na habitação colectiva. Exploram-se estes conceitos e a sua contextualização, bem como os tipos e estratégias de flexibilidade habitacional. São ainda analisados uma série de projectos de arquitectura que devido às suas características são referências para o desenvolvimento do projecto.
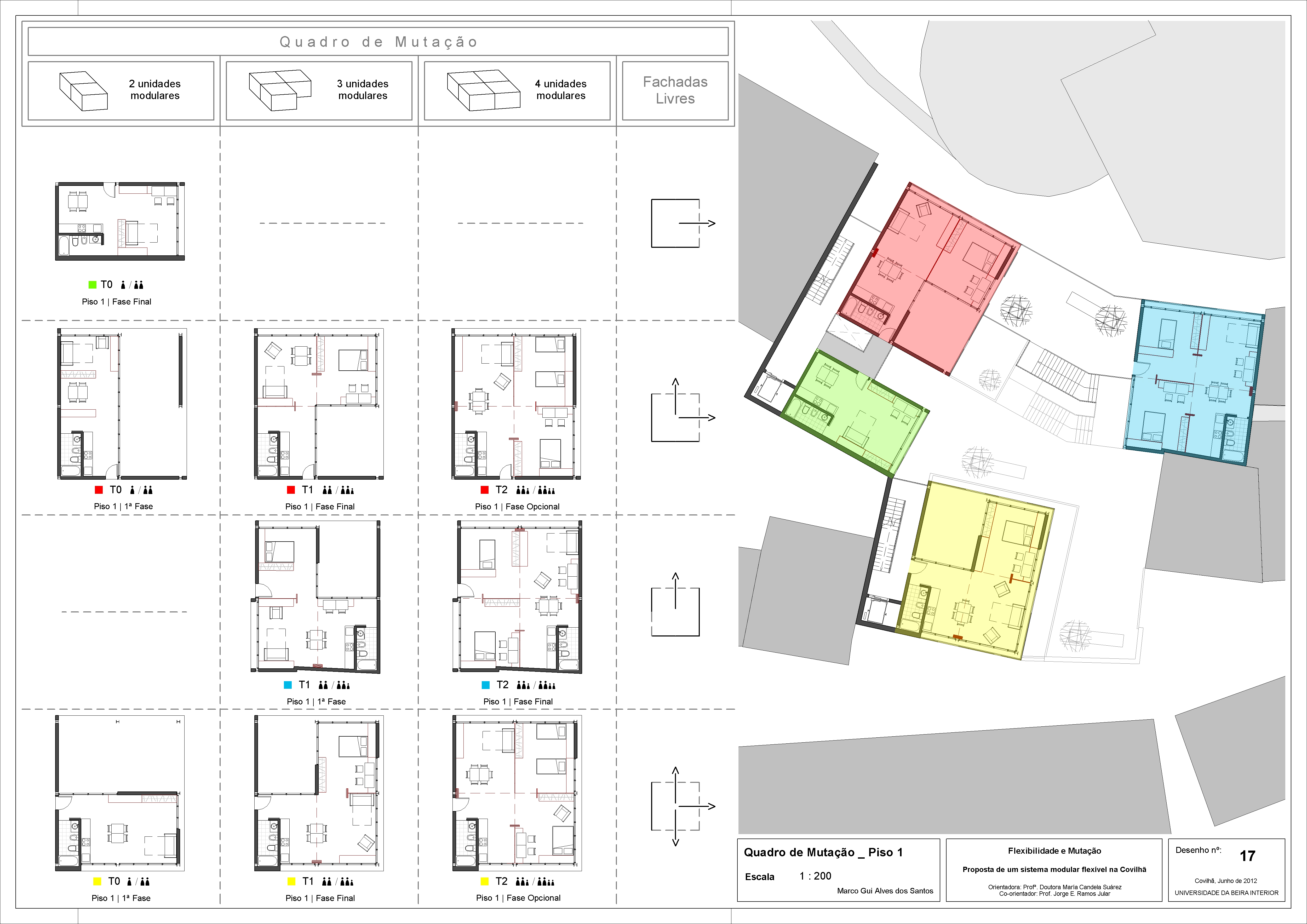
Propõe-se um sistema modular flexível para habitação colectiva, através das ferramentas e estratégias de projecto de arquitectura, baseado conceptual e formalmente no enquadramento teórico e nos casos de estudo. Este sistema parte de uma unidade modular e compõem-se por elementos permanentes (estrutura e bloco de serviços) e elementos flexíveis (elementos de sombreamento das fachadas, paredes exteriores, paredes interiores e mobiliário), tendo sempre em conta certas condicionantes, tais como localização dos acessos, número de fachadas livres, localização dos serviços e tipologias. Um dos objectivos deste sistema é fornecer adaptabilidade e variedade tipológica e formal às habitações durante a sua vida útil. No final, o sistema é ainda aplicado numa proposta de projecto de habitação colectiva para a Covilhã, mais precisamente no centro histórico da cidade.
The various habits and ways of life of the urban population and the multiplicity of needs relating to the domestic space, together with the accelerated changes in contemporary social and familiar model, call into question the processes for housing production in series, justifying the exploration of alternative ways. It is necessary to consider the architecture linked to housing as an "organism" open to change, therefore adaptable to a greater socio-cultural diversity and longer life. Flexibility in architecture is the possibility of incorporating changes in space, related with current and future needs of users, providing formal variety, typological and interior distribution. Include flexibility in housing units over time, related both to the day-night duality as with the steps in the life of a family, allows buildings to accommodate new functions and respond more adequately to the requirements of residents. This dissertation addresses the issue of flexibility and changeability in collective housing. These concepts and their context are explored, as well as the types and strategies of flexible housing. There are also analyzed a series of architectural projects that due to their characteristics are references to the development of the project. A flexible modular system for collective housing is propose, using the tools and strategies of architectural design, based conceptually and formally on the theoretical framework and case studies. This system beginnings in a modular unit and consist of permanent elements (structure and block of services) and flexible elements (elements of shading of the facades, exterior walls, interior walls and furniture), taking into account certain constraints, such as location of access, number of facades with sun, location of services and typologies. One objective of this system is to provide adaptability and typological and formal variety of housing during their lifetime. In the end, the system is still applied to a project of collective housing for Covilhã, more precisely in the historical part of the city.
The various habits and ways of life of the urban population and the multiplicity of needs relating to the domestic space, together with the accelerated changes in contemporary social and familiar model, call into question the processes for housing production in series, justifying the exploration of alternative ways. It is necessary to consider the architecture linked to housing as an "organism" open to change, therefore adaptable to a greater socio-cultural diversity and longer life. Flexibility in architecture is the possibility of incorporating changes in space, related with current and future needs of users, providing formal variety, typological and interior distribution. Include flexibility in housing units over time, related both to the day-night duality as with the steps in the life of a family, allows buildings to accommodate new functions and respond more adequately to the requirements of residents. This dissertation addresses the issue of flexibility and changeability in collective housing. These concepts and their context are explored, as well as the types and strategies of flexible housing. There are also analyzed a series of architectural projects that due to their characteristics are references to the development of the project. A flexible modular system for collective housing is propose, using the tools and strategies of architectural design, based conceptually and formally on the theoretical framework and case studies. This system beginnings in a modular unit and consist of permanent elements (structure and block of services) and flexible elements (elements of shading of the facades, exterior walls, interior walls and furniture), taking into account certain constraints, such as location of access, number of facades with sun, location of services and typologies. One objective of this system is to provide adaptability and typological and formal variety of housing during their lifetime. In the end, the system is still applied to a project of collective housing for Covilhã, more precisely in the historical part of the city.
Descrição
Palavras-chave
Sistema modular flexível Arquitectura
